The Sidney

3.5 Bath | 4 Bedroom | 5,600-Square-Foot Barndominium

down arrow

Floor Plan Details

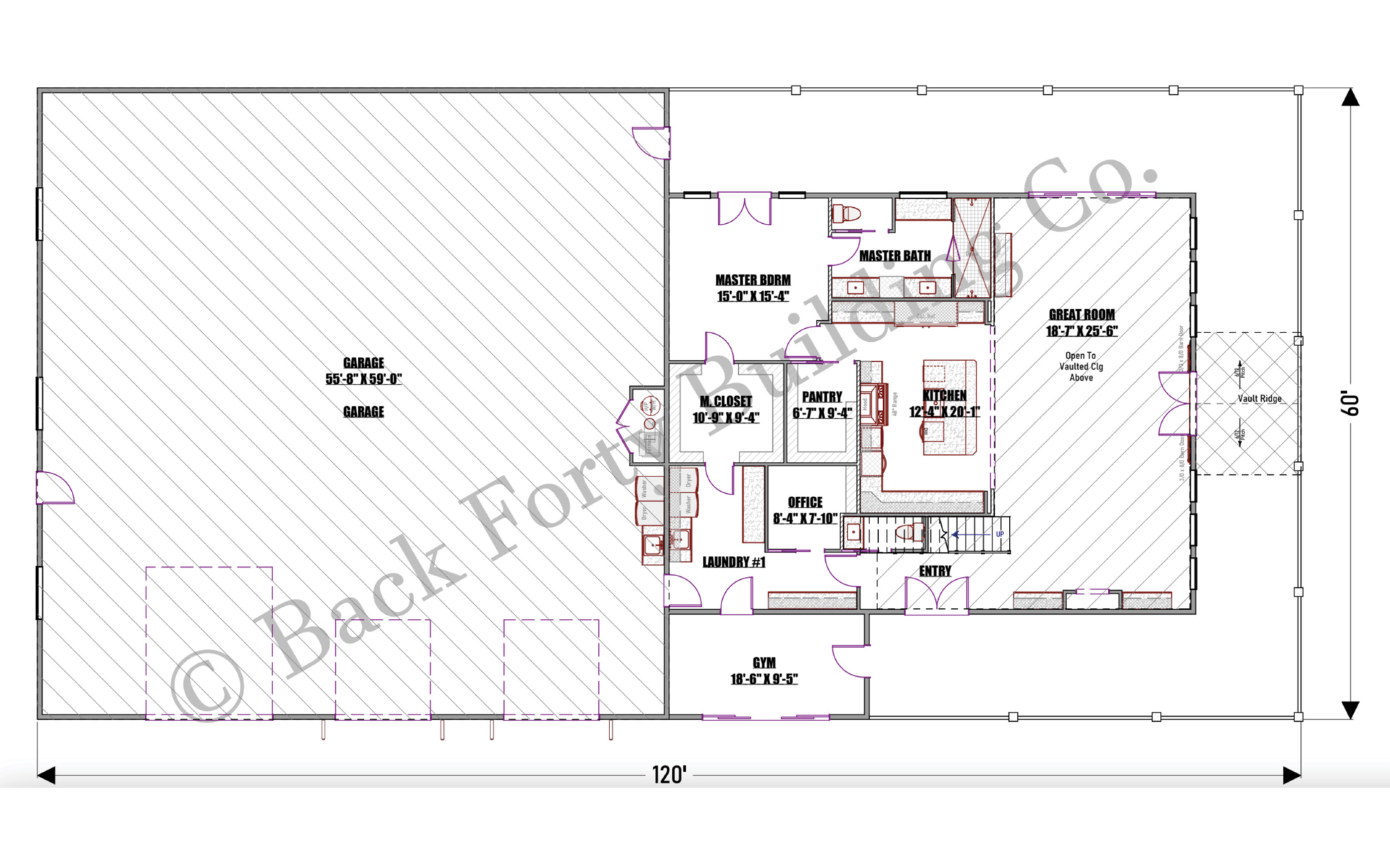
The Sidney Barndominium

The Sidney is a two-story barndominium floor plan designed for homeowners who want spacious living and standout curb appeal. With 3,163 square feet of living space, this charming pole barn home includes four bedrooms, three-and-a-half bathrooms, and a three-car garage.

A defining feature is the wraparound porch, offering more than 1,400 square feet of outdoor space.

Inside, the open-concept floor plan connects the living area, dining room, and kitchen to create a bright, functional space for everyday living. Luxurious upgrades include a walk-in pantry, laundry room, office, and home gym.

Upstairs, the layout includes a bonus loft, a Jack-and-Jill bathroom, and additional storage space for convenience.

The Sidney works with post-frame, steel-frame, stick-frame, or hybrid construction. Custom options are available to tailor the floor plan to your needs.

Rough Barndominium Shell Price: ~$240,000

If you’re estimating the cost of the living area of your pole barn home, use the following as a very rough estimate based on moderate finishes.

  • DIY: $95–$110 per sq. ft.
  • Partial DIY: $110–$160 per sq. ft.
  • Turn-Key: $160–$200 per sq. ft.

You can expect to pay $35–$45 per sq. ft. for non-living spaces.

Keep in mind that barndominium costs vary based on several factors, including the complexity of the pole barn design, finish selections, building materials, and labor costs. Click here to learn more.

Purchase the Floor Plan

View Past Projects

Residential Post-Frame Buildings

Explore residential post-frame buildings designed and built by FBi Buildings, including custom barndominiums, pole barn garages, hobby shops, suburban storage, and workshops.

Jerry Douglass VISIT PROJECT

Heritage Acres VISIT PROJECT

Cook Rec Barn VISIT PROJECT

Jim Huekels VISIT PROJECT

Mike Fuqua VISIT PROJECT

Barndo Floor Plan_Header Image

Free Barndominium Floor Plans

Planning Your Dream Barndo Starts Here!

FBi has partnered with Back Forty Buildings to offer seven customizable barndominium floor plans. We’ll provide detailed information for each modern post-frame home design.

GET STARTED

Barndo Floor Plan_Header Image

Learning Center

Helpful Resources

From planning and financing to building and finishing your dream barndominium, the FBi Learning Center provides expert guidance on post-frame construction. Explore our blogs, educational videos, and guides today!

FBI Buildings Logo Icon

Ready to move forward with your project?

Get an expert to walk you through every step of the way.